NURSING HOME

ems st-françois – sion

The project EMS St-François Sion was developed as part of an architecture competition for the extension of a care facility located on a green plot slightly above the city of Sion, Switzerland.

The site benefits from open views toward the alpine landscape as well as toward the historic landmarks of the city, including the Tourbillon castle and the Valère basilica. In order to preserve these visual qualities and avoid blocking existing views, the extension is positioned on the southern part of the site. The new building is composed of four shifted volumes whose arrangement creates large façade openings and establishes a direct relationship with the surrounding landscape.

This proposal for healthcare architecture in Sion aims to develop a building that is open, bright and strongly connected to its natural and urban context.

The structural concept is based on a combination of reinforced concrete and timber structure, allowing an efficient balance between structural performance, seismic behaviour and interior comfort. The lower levels are built in reinforced concrete and form a rigid base ensuring the stability of the building, while the upper floors are designed in load-bearing timber construction with solid wood slabs. This solution reduces structural weight, limits spans and improves seismic performance while providing a warmer interior atmosphere.

This constructive approach makes it possible to develop a more sustainable and lightweight architecture for care facilities in Switzerland, adapted to the local context and construction traditions. The connection with the existing building is made through a low transparent volume conceived as a shared space that encourages movement, encounters and continuity between the different parts of the complex.

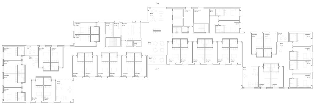
The project EMS St-François Sion organizes the living units in pairs over four levels, allowing different atmospheres and ways of inhabiting the building. Each floor includes a large through-living room acting as the social heart of the level, opening onto a south-facing loggia with panoramic views over the Rhône valley. These bright shared spaces support everyday interaction, while smaller corner lounges provide quieter areas for more intimate moments. Additional living rooms combined with loggias offer spaces at a more domestic scale, allowing residents to choose between collective and private environments.

The intention is to move away from the traditional institutional image and to design an EMS conceived as a shared house, where the quality of space, light and views contributes to everyday well-being.

The building volumes generate several outdoor spaces with distinct characters, reinforcing the relationship between architecture, landscape and social life. On the west side, a more public park allows encounters between residents, visitors and neighbours. To the east, protected terraces create quieter communal areas, while to the south a garden open toward the alpine panorama offers a calm setting for walking and contemplation.

These exterior spaces extend the interior living areas and play an essential role in the design of care architecture in Switzerland, where the connection to the site, the landscape and natural light is fundamental.

Lire plus